Abteil in Werkhalle zu Vermieten Miete Hallenabteil
Informationen zur Immobilie:
Ort
96188 Stettfeld
Objektart
Gewerbeobjekt
Größe
ca. 7,00 m²
7 €
Beschreibung:
Mehr zum Angebot Abteil in Werkhalle zu Vermieten Miete Hallenabteil:
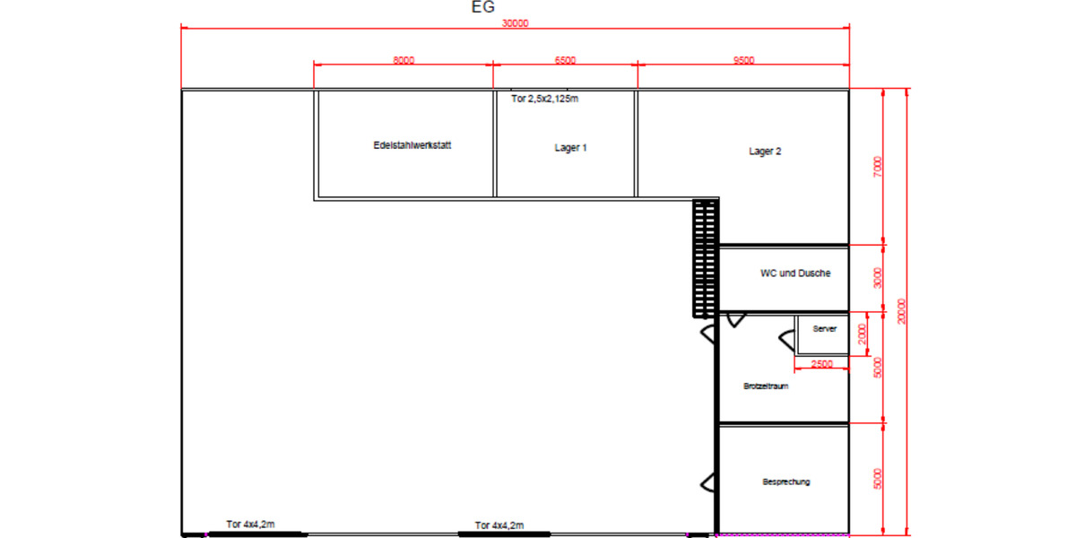
Zur Vermietung wird angeboten: Abteil in Werkhalle/Gewerbehalle mit Büroflächen
Verfügbar ab 01.05.2026
Abteilgrößen zwischen 90m² und 600m² sind möglich.
Abtrennung erfolgt in Absprache und auf Wunsch des Mieters
Größe gesamt: ca. 760 m²
Aufgeteilt in... mehr erfahren
Zur Vermietung wird angeboten: Abteil in Werkhalle/Gewerbehalle mit Büroflächen
Verfügbar ab 01.05.2026
Abteilgrößen zwischen 90m² und 600m² sind möglich.
Abtrennung erfolgt in Absprache und auf Wunsch des Mieters
Größe gesamt: ca. 760 m²
Aufgeteilt in... mehr erfahren
weitere Gewerbeobjekte